Строительство модульных домов, бань, беседок по самым лучшим традициям нашего времени от производителя.
Адрес: г. Барнаул ул.Коммунистическая 118В
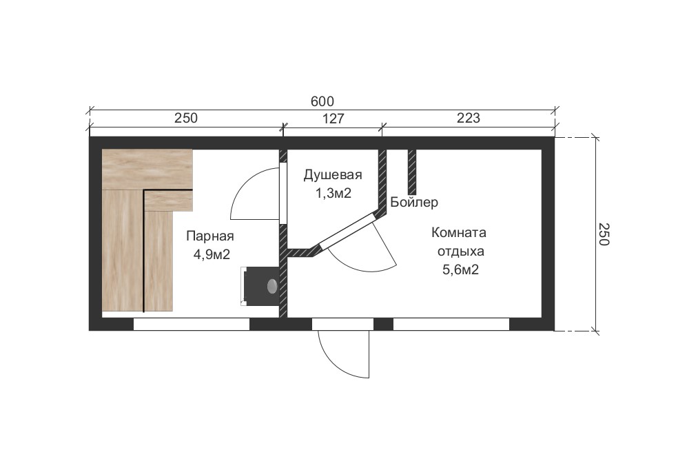
Современные бани с сибирским характером от 189 000 руб!
Каркас Бани
Внешняя отделка
Остекление и двери
Внутренняя отделка
Печь
Инженерия





Каркас, Утепление, Кровля




Внешняя отделка комбинированная



Остекление и двери




Внутренняя отделка




Печь





Инженерия





Наши бани - это
Несущая конструкция
Каркас изготовлен из сухой строганной доски камерной сушки
Индивидуальный проект
Каждый заказчик может внести свои изменения в планировку
Экологичность
Все компоненты бани выполнены в соответствии со стандартами безопасности природы и окружающей среды
Утеплитель
Высокоэффективные утеплители для каркасного домостроения помогают удерживать внутреннее тепло в любое время года
Пропитка и обработка
Наделяет изделия водоотталкивающими свойствами, делает дерево более долговечным и менее подверженному горению
Фасад
Фасад может быть выполнен в различных конфигурациях
ОСУЩЕСТВИТЕ СВОЮ МЕЧТУ ВМЕСТЕ С "СИБИРСКОЙ СОСНОЙ"
Заполните форму ниже, и получите готовый дом уже на следующий день после подписания договора!
Реальные отзывы о модульных домах от наших покупателей. Больше отзывов читайте на площадках Яндекс и Google.

"Всю жизнь мечтал о своем доме за городом, но пугал срок стройки и бюджет. Решил рискнуть с модульным домом от вашей компании – и не пожалел ни секунды! С женой выбрали проект "Скандик 30" с небольшой террасой. От момента подписания договора до заселения прошло ровно 1 месяц! Самое поразительное – качество. Дом теплый (зимой топим экономно), окна отличные, все коммуникации продуманы. Монтаж занял всего 3 дня, бригада работала четко и чисто. Ощущение, что дом стоит уже годы, а не месяцы. Спасибо менеджеру Степану за терпение и грамотные консультации! Рекомендую всем, кто хочет свой дом быстро и без нервотрепки."

"Я занимаюсь посуточной арендой домов в Горном Алтае. Выбор пал именно на модульные дома, потому что это удобно, быстро и практично. Выбрала компанию "Сибирская сосна", т.к. мне очень понравился стильный дизайн и приемлемая цена."

"Мечтала о беседке, где можно укрыться и от солнца, и от дождя, попить кофе с книгой или поужинать. Выбрала вашу модель "Марсель" с односкатной крышей и решетчатыми стенками. Беседка невероятно стильная! Не громоздкая, но очень уютная. Дерево (лиственница) выглядит благородно. Особенно радуют детали: аккуратные угловые соединения, гладкие перила. Установили за один день, фундамент сделали на винтовых сваях по моей просьбе. Теперь это мой маленький оазис. Даже в дождь сидеть там – одно удовольствие, слушать стук капель по крыше. Спасибо за качество и эстетику!"

"Спасибо! Дом классный! Я с недоверием относился к модульным домам, пока не побывал у вас на производстве! Круто, что даете гарантию, так спокойнее.))) 2 месяца живём на даче всё нравится, проблем никаких нет. Ещё раз Спасибо!"

"Находился в поиске модульного дома в Алтайском крае по приемлемой цене и наткнулся на сайт компании "Сибирская сосна", оставил заявку - сразу же перезвонили, что очень впечатлило.Все рассказали, пригласили на просмотр, показали производство.Все четко и по делу. Опытные работники, подберут то, что Вам нужно.Остался очень доволен, спасибо!"
КОНТАКТЫ
Телефон: 8 (913) 258 00 39
Email: sib.sosna22@mail.ru
Адрес: г.Новоалтайск ул.Коммунистическая 118В
© 2022 Все права защищены